
Listed by: Fred Bruen, DRE #00969867 from RE/MAX Parkside Real Estate 805-235-4681
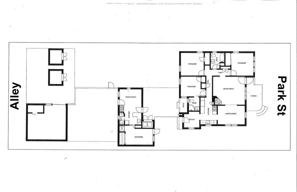
LOCATION! LOCATION! LOCATION! Just steps from the vibrant downtown Paso Robles corridor—home to acclaimed restaurants, wine tasting rooms, boutique shops, and live entertainment. This versatile property offers tremendous potential. Live in the charming main home and rent out the detached ADU (short-term or long-term). Or bring extended family to stay, whether it’s mom in the ADU or a teenager enjoying some space of their own. With alley access and ample parking, a third unit may even be a real possibility. The main house is a classic 1938 California Bungalow, full of original charm. It features 3 bedrooms, 2 bathrooms, a cozy fireplace in the living room, and a formal dining room just off the kitchen. Two private rear patios provide peaceful outdoor retreats, perfect for enjoying Paso’s beautiful weather year-round. Don’t miss this rare opportunity in a prime location!
© 2025. The multiple listing data appearing on this website is owned and copyrighted by California Regional Multiple Listing Service, Inc. ("CRMLS") and is protected by all applicable copyright laws. Information provided is for the consumer's personal, non-commercial use and may not be used for any purpose other than to identify prospective properties the consumer may be interested in purchasing. All data, including but not limited to all measurements and calculations of area, is obtained from various sources and has not been, and will not be, verified by broker or MLS. All information should be independently reviewed and verified for accuracy. Properties may or may not be listed by the office/agent presenting the information. Any correspondence from IDX pages are routed to RE/MAX Parkside Real Estate or one of their associates. Last updated Thursday, May 22nd, 2025. Based on information from CARETS as of Thursday, May 22nd, 2025 04:15:02 AM. The information being provided by CARETS is for the visitor's personal, noncommercial use and may not be used for any purpose other than to identify prospective properties visitor may be interested in purchasing. The data contained herein is copyrighted by CARETS, CLAW, CRISNet MLS, i-Tech MLS, PSRMLS and/or VCRDS and is protected by all applicable copyright laws. Any dissemination of this information is in violation of copyright laws and is strictly prohibited. Any property information referenced on this website comes from the Internet Data Exchange (IDX) program of CRISNet MLS and/or CARETS. All data, including all measurements and calculations of area, is obtained from various sources and has not been, and will not be, verified by broker or MLS. All information should be independently reviewed and verified for accuracy. Properties may or may not be listed by the office/agent presenting the information.
Data services provided by IDX Broker
| Price: | $$1,100,000 |
| Address: | 1735 Park Street |
| City: | Paso Robles |
| County: | San Luis Obispo |
| State: | California |
| Zip Code: | 93446 |
| Subdivision: | PR City Limits West(120) |
| MLS: | NS25073678 |
| Year Built: | 1938 |
| Square Feet: | 1,614 |
| Acres: | 0.161 |
| Lot Square Feet: | 0.161 acres |
| Bedrooms: | 4 |
| Bathrooms: | 3 |
| Half Bathrooms: | 2 |

































